Beschrijving
Fraaie hoekwoning (type gezinswoning) met garage, berging en een ruime voor- en achtertuin. De woning staat op een gewilde locatie met ruim voldoende parkeergelegenheid nabij het gezellige centrum van Geertruidenberg. Bijzonder aan de woning is een dat het perceel maar liefst 243 m² groot is en als extra de garage naast de woning. De voortuin is onderhoudsvriendelijk, fraai aangelegd en bied ruim voldoende ruimte bijvoorbeeld je aanhanger te parkeren op eigen terrein. De eveneens fraai aangelegde achtertuin ligt heerlijk op het westen en is ca. 6 meter breed en ca. 12,5 meter diep.
Indeling woning begane grond o.a.: hal met meterkast, toilet, voorraadkast en woonkamer met open keuken. Indeling eerste verdieping o.a.: overloop, een 3-tal slaapkamers badkamer en een vaste trap naar de tweede verdieping met voorzolder met de cv-ketel en de aansluiting voor het witgoed zit. Daarnaast zit er op deze verdieping een 4e slaapkamer welke aan de achterzijde voorzien is van een dakkapel.
Kozijnen zijn van kunststof en voorzien van HR beglazing en zowel de kruipruimte als de spouwmuren zijn na-geïsoleerd. De woning beschikt op de begane grond en op de eerste verdieping over rolluiken. Wil jij wonen op deze fijne locatie? Maak dan een afspraak en wij laten je graag de woning zien! Energielabel: C. Bouwjaar woning 1972, inhoud ca. 406,23 m³, gebruiksoppervlakte wonen 114,70 m² en perceel groot ca. 243m². (Pand nr. 05580)
Van de woning is een officieel inmeetrapport aanwezig. Tevens kan je hier van alle ruimtes de afmetingen terugvinden (zie floorplanners).
Ben je geïnteresseerd in de woning en wil je een bod uitbrengen? Dan kan dat direct via onze site met de knop “Eerlijk bieden”. Onze site is voorzien van een online Biedlogboek (*). Hier kunnen kandidaten ook alle info van de woning direct downloaden. Vanaf 1 januari 2023 is het verplicht dat alle makelaars gebruik maken van een gecertificeerd Biedlogboek.
(*) Het biedlogboek is een digitaal overzicht waarin alle stappen in het verkoopproces terug te vinden zijn. Alle kandidaten die een bod hebben uitgebracht kunnen achteraf inzien welke biedingen er ingezonden zijn.
Indeling
Indeling begane grond:
• Entree: aan voorzijde met hierachter de hal en meterkast (7 groepen/ 1x aardlek). Op de vloer keramische tegels die doorlopen naar de woonkamer en keuken.
• Toiletruimte: In de hal een deels betegelde toiletruimte voorzien van een hangcloset.
• Woonkamer met open keuken: Aan de voorzijde van de woning een gezellige zithoek en het eetgedeelte aan de achterzijde van de woning. De hoekkeuken is geplaatst in 2023 en voorzien van een inductiekookplaat met afzuiging in de kookplaat, koelkast, combimagnetron en vaatwasser. Op de gehele begane grond ligt vloerverwarming als hoofdverwarming. De woonkamer inclusief open keuken is maar liefst ca. 35,1 m² groot.
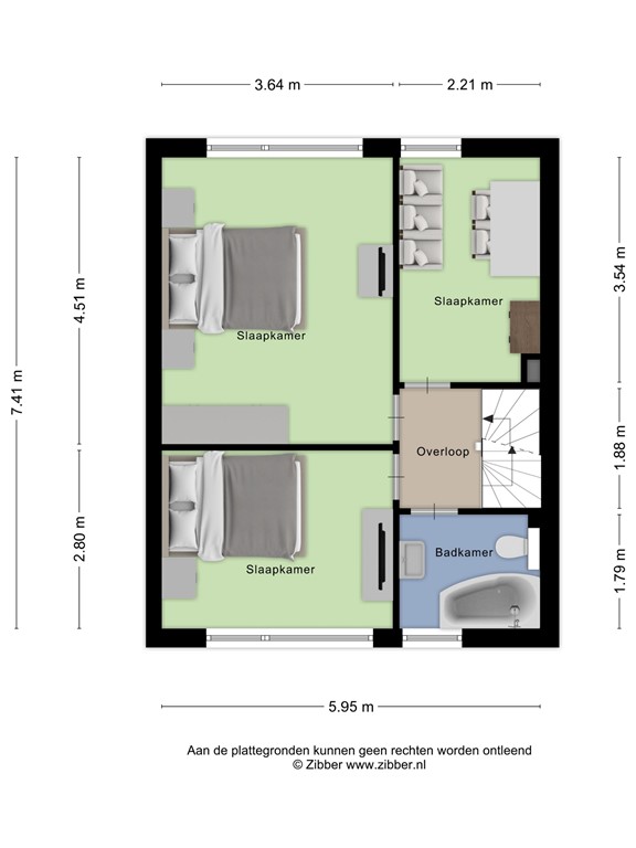
Eerste verdieping
Indeling eerste verdieping:
• Overloop: de overloop geeft toegang tot de 3 slaapkamers (resp. 16,4 m², 10,2 m² en 7,8 m² groot) en de badkamer (ca. 4 m² groot). Daarnaast de vaste trap naar de tweede verdieping.
• Badkamer: Volledig betegelde badkamer met hoekbad, hangcloset en wastafel met wastafelmeubel.
Tweede verdieping
Indeling tweede verdieping:
• Voorzolder: Voorzolder waar de aansluiting voor het witgoed zit. Hier ook de CV-ketel Nefit Exoline HR Excellent (bj. 2005). Bij de knieschotten extra bergruimte.
• Slaapkamer: riante 4e slaapkamer gelegen op de tweede verdieping van maar liefst 20,6 m² groot!
Tuin
Voor-achtertuin, garage:
• De voortuin: in de voortuin is nagenoeg volledig bestraat. Naast de woning is een stuk grond bijgekocht van de gemeente, waardoor je extra veel ruimte hebt om bijvoorbeeld een aanhanger op te zetten.
• De garage en berging: Aan de linker zijde van de woning een garagebox met elektrisch bedienbare sectionaaldeur. Achterin de tuin is nog een losse, in steen uitgevoerde, berging te vinden.
• Achtertuin: Een onderhoudsvriendelijke achtertuin op het westen met direct achter de woning een terrasgedeelte. Hier heb je in de middag en namiddag heerlijk de zon in de tuin. Bij de woonkamer / keuken een zonnescherm over de volledige breedte van de woning.
Bijzonderheden
Bouwtechnisch-overig: begane vloer beton, verdiepingsvloer houten balklaag. Onder de woning (gedeeltelijk toegankelijke) kruipruimte. Luik naar kruipruimte zit in de trapkast. Verdeler vloerverwarming zit bij de keuken.
Een mondelinge overeenstemming tussen de particuliere verkoper en de particuliere koper is niet rechtsgeldig. Met andere woorden: er is geen koop. Er is pas sprake van een rechtsgeldige koop als beide partijen de koopovereenkomst hebben ondertekend.
Een inmeetrapport volgens de NEN-norm is verplicht bij vastgoed. Zopfi Makelaardij levert standaard bij al zijn vastgoed een inmeetrapport dat door een erkend bedrijf wordt opgesteld. U hoort als kandidaat-koper immers te weten hoe groot de inhoud van de woning is en de daadwerkelijke woonoppervlakte. Dat mag zeker geen inschatting zijn.
De gegeven informatie is met zorgvuldigheid opgesteld, aan de juistheid kunnen echter geen rechten worden ontleend. De informatie is slechts als informatief bedoeld. Het deponeren van een bankgarantie door koper is een vereiste. Als het object ca. 20 jaar oud is kan de ouderdomsclausule worden opgenomen. Eventuele clausules treft u aan in de Vragenlijst.
Zopfi Makelaardij is een betrouwbare en sterkte partner. Bij ons voel jij je thuis.
Plattegronden
178981564_1589432_noord_begane_grond_first_design_20251106_06d349.jpg
178981564_1589432_noord_eerste_verdiepi_first_design_20251106_082d88.jpg
178981564_1589432_noord_tweede_verdiepi_first_design_20251106_f656bf.jpg
178981564_1589432_noord_berging_first_design_20251106_8c2c2b.jpg
178981564_1589432_noord_garage_first_design_20251106_f0bb58.jpg