| Prijs | € 745.000,- k.k. |
| Type object | Woonhuis, eengezinswoning, twee onder een kap woning |
| Perceeloppervlakte | 333 m² |
| Woonoppervlakte | 164,7 m² |
| Aanvaarding | In overleg |
| Status | Nieuw in verkoop |
Uiterst riante, courante en supermooie 2/1 kap woning met aanbouw, garage en tuinkamer aan de Hooimijt. Dit pand is positief afwijkend met de overige 2/1 kapwoningen op deze locatie. Wat is anders bij dit object: 1) De enige 2/1 kap woning met een aanbouw (van maar liefst 31m²); 2) De enige 2/1 kap woning met ca. 100m² meer aan grond en 3) De enige 2/1 kap woning met aan de voorzijde een erker. Tevens bijzonder: de woning heeft een inbraakalarm en een 24-tal zonnepanelen en een 2-tal airco’s t.b.v. de eerste verdieping. Indeling begane grond o.a.: ontvangsthal met garderobe, toiletruimte, meterkast, trapopgang naar eerste verdieping, woonkamer met open keuken (totaal ca. 50m²/ keuken op maat gemaakt door K2), fraaie tunnel gashaard tussen zit- en eetgedeelte en openslaande tuindeuren met aansluitend een bijkeuken (ca. 5,80m²). Indeling eerste verdieping o.a.: L-vormige overloop, vaste kast, trapopgang naar tweede verdieping, 3-tal royale slaapkamers van resp. groot ca. 12,20m²/ 11,10m² en 9,40m², en een ruime complete badkamer (ca. 7,00m²). Indeling tweede verdieping: een 4e slaapkamer/ kantoor of multifunctionele ruimte (groot ca. 32,00m2). In de achtertuin staat de in spouw uitgevoerde garage (ca. 6,87 x 3,58m) met o.a. een sectional garagedeur. Aansluitend een fraaie tuinkamer van ca. 20m². Naast de garage een extra brede poort met achterom. Voor de garage is meer dan voldoende ruimte om een auto te parkeren op eigen terrein. De grote overstekken bij de woning en de erker geven de woning een typisch jaren-30 stijl met een gemoedelijke uitstraling. De kozijnen zijn overal uitgevoerd in hardhout met isolerende beglazing (HR++). De woning ligt op een gewilde en kindvriendelijk jonge woonwijk. Op redelijk geringe afstand ligt het dorpscentrum en een school voor basis- en voortgezet onderwijs. Energielabel; A+. Kortom: een zeer goed geïsoleerde gezinswoning. Maak een afspraak en ervaar de grootte en ruimte in deze woning en het riante perceel (t.o.v. de overige 2/1 kapwoningen in deze buurt). Onze makelaars geven jullie met plezier een rondleiding. Bouwjaar woning incl. aanbouw 2017, tuinkamer bj. 2019, perceel 333m², woonoppervlak 164,70m² en inhoud 583,32m³. (Pand nr. 05589) Van de woning is een officieel inmeetrapport aanwezig. Tevens kan je hier van alle ruimtes de afmetingen terugvinden (zie floorplanners). Ben je geïnteresseerd in de woning en wil je een bod uitbrengen? Dan kan dat direct via onze site met de knop “Eerlijk bieden”. Onze site is voorzien van een online Biedlogboek (*). Hier kunnen kandidaten ook alle info van de woning direct downloaden. Vanaf 1 januari 2023 is het verplicht dat alle makelaars gebruik maken van een gecertificeerd Biedlogboek. (*) Het biedlogboek is een digitaal overzicht waarin alle stappen in het verkoopproces terug te vinden zijn. Alle kandidaten die een bod hebben uitgebracht kunnen achteraf inzien welke biedingen er ingezonden zijn
Indeling begane grond: • Entree: aan voorzijde met hierachter de ontvangsthal. In de hal een duurzame parketvloer die doorloopt over de gehele begane grond m.u.v. de bijkeuken. • Meterkast: 21 groepen en 5x aardlek • Toiletruimte: deels betegeld, deels stucwerk met wandcloset en fonteinmeubel. In de toiletruimte mechanische ventilatie. • Bij de trapopgang een garderobe. • Woonkamer met open keuken: in de keuken een op maat gemaakte keukenwand met kookeiland en zit-bar. De keuken is voorzien van geïntegreerde apparatuur zoals: vaatwasser, inductiekookplaat met afzuigkap, Grohe kokend warmwaterkraan, combimagnetron en een combisteamer, koelkast, vriezer en een composiet werkblad. Bij het kookeiland rondom een tegelvloer i.p.v. parket. De tunnel gaashaard tussen zit- en eetgedeelte en de openslaande tuindeuren dragen bij aan deze sfeervolle living. Wanden zijn deels strak stucwerk en deels met behang. Het plafond is van schuurwerk. • Bijkeuken: dit valt ook onder de aanbouw aan de achterzijde. Vanuit de woonkamer is de toegangsdeur naar deze ruimte die zeer praktisch is ingedeeld: rechts een schuifwandkast met hier de aansluiting voor het witgoed. Aan de linkerzijde een keukenblok met warm-koud/kraan en spoelbak. Aansluitend de deur naar de achtertuin.
Indeling eerste verdieping: • Overloop: ruime L-vormige overloop met vaste kast. De vloer is afgewerkt met laminaat die doorloopt in alle slaapkamers. Op de overloop de vaste trapopgang naar de tweede verdieping. De trapopgang en overloop zijn beide afgewerkt met spachtelputz. • Slaapkamers: een 3-tal ruime slaapkamers, afgewerkt met strak stucwerk en/of behang en alle plafonds met schuurwerk. In de ouderslaapkamer is naast een raampartij ook nog een zgn. Frans balkon en deze is voorzien van een airco. • Badkamer: een complete en mooie badkamer met o.a. een ligbad, dubbele wastafel met ombouw, handdoekenkast, wandcloset en een douchecabine. De wanden zijn deels betegeld en de badkamer is voorzien van mechanische ventilatie.
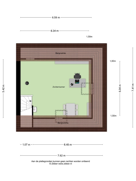
Indeling tweede verdieping: • Zolderkamer: Grote open zolder geschikt als slaapkamer of bijvoorbeeld als kantoor met een 2-tal dakramen die zorgen voor de lichtinval. Bij de knieschotten is extra opbergruimte. Op deze kamer zit tevens de HR-combi cv Remeha Calenta CW5 en de mechanische ventilatie (Co2 gestuurd). Op de vloer eenzelfde laminaatvloer als op de eerste verdieping.
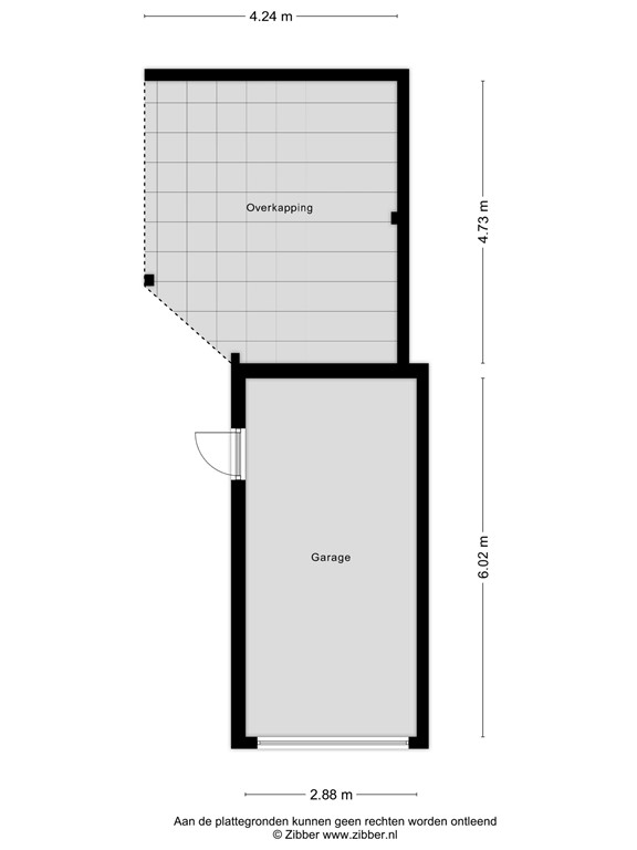
Voor-achtertuin en tuinkamer, garage: • De voortuin (noordwest, ca. 7,50m breed en ca. 2,50m diep): onderhoudsvriendelijk aangelegd met deels sierbestrating en een ruime grindborder met fraaie plantenbak van cortenstaal en een border met grasplanten. Voor de poort een beschutte ruimte voor de afvalcontainers. Voor de garage ruimte voor het parkeren van de auto. De achtertuin (zuidwest, ca 17m breed en 9m diep): ruim terras achter de woning met een groot grasveld voor de kinderen. • De tuinkamer (c,. 4,73 x 4,24m) ligt direct achter de garage en is een fijne schaduwplek tijdens de zomermaanden. • Der garage is in spouw uitgevoerd, geïsoleerd en meet ca. 6,02 x 2,88m (binnenwerks).
Bouwtechnisch-overig: begane vloer en verdiepingsvloeren zijn van beton. Er is geen kruipruimte. Anker-loze spouwmuur tussen buren. Spouwmuren woning 40cm. Schilderwerk buitenzijde juli 2024 en binnenzijde de voordeur en de erker. Alle verdiepingen hebben vloerverwarming als hoofdverwarming. Meer info over zonnepanelen: raadpleeg de Vragenlijst Een mondelinge overeenstemming tussen de particuliere verkoper en de particuliere koper is niet rechtsgeldig. Met andere woorden: er is geen koop. Er is pas sprake van een rechtsgeldige koop als beide partijen de koopovereenkomst hebben ondertekend. Een inmeetrapport volgens de NEN-norm is verplicht bij vastgoed. Zopfi Makelaardij levert standaard bij al zijn vastgoed een inmeetrapport dat door een erkend bedrijf wordt opgesteld. U hoort als kandidaat-koper immers te weten hoe groot de inhoud van de woning is en de daadwerkelijke woonoppervlakte. Dat mag zeker geen inschatting zijn. De gegeven informatie is met zorgvuldigheid opgesteld, aan de juistheid kunnen echter geen rechten worden ontleend. De informatie is slechts als informatief bedoeld. Het deponeren van een bankgarantie door koper is een vereiste. Als het object ca. 20 jaar oud is kan de ouderdomsclausule worden opgenomen. Eventuele clausules treft u aan in de Vragenlijst. Zopfi Makelaardij Made is een betrouwbare en sterkte partner. Bij ons voel jij je thuis.
| Referentienummer | 05589 |
| Vraagprijs | € 745.000,- k.k. |
| Inrichting | Niet gestoffeerd |
| Inrichting | Niet gemeubileerd |
| Status | Nieuw in verkoop |
| Aanvaarding | In overleg |
| Aangeboden sinds | Maandag 20 april 2026 |
| Type object | Woonhuis, eengezinswoning, twee onder een kap woning |
| Soort bouw | Bestaande bouw |
| Bouwperiode | 2017 |
| Dakbedekking | Bitumen Dakpannen |
| Type dak | Schilddak |
| Keurmerken | Beveiliging |
| Isolatievormen | Ankerloze spouwmuren Dakisolatie Dubbel glas HR-glas Muurisolatie Spouwmuren Vloerisolatie Volledig geïsoleerd |
| Perceeloppervlakte | 333 m² |
| Woonoppervlakte | 164,7 m² |
| Woonkameroppervlakte | 50 m² |
| Inhoud | 583 m³ |
| Oppervlakte externe bergruimte | 17,3 m² |
| Oppervlakte gebouwgebonden buitenruimte | 4 m² |
| Aantal bouwlagen | 3 |
| Aantal kamers | 5 (waarvan 4 slaapkamers) |
| Aantal badkamers | 1 (en 1 apart toilet) |
| Ligging | Aan rustige weg In woonwijk Nabij school Nabij snelweg |
| Type | Achtertuin |
| Hoofdtuin | Ja |
| Oriëntering | Noord west |
| Heeft een achterom | Ja |
| Staat | Prachtig aangelegd |
| Tuin 2 - Type | Achtertuin |
| Tuin 2 - Oriëntering | Zuid-west |
| Tuin 2 - Heeft een achterom | Ja |
| Tuin 2 - Staat | Goed onderhouden |
| Energielabel | A+ |
| CV ketel | HR-combi Remeha Calenta CW5 |
| Warmtebron | Gas |
| Bouwjaar | 2017 |
| Combiketel | Ja |
| Eigendom | Eigendom |
| Aantal parkeerplaatsen | 2 |
| Aantal overdekte parkeerplaatsen | 1 |
| Warm water | CV-ketel |
| Verwarmingssysteem | Airconditioning Centrale verwarming Gashaard Vloerverwarming |
| Ventilatie methode | Mechanische ventilatie Natuurlijke ventilatie |
| Keukenvoorzieningen | Inbouwapparatuur Kookeiland |
| Badkamervoorzieningen | Douche Dubbele wastafel Ligbad Toilet Wastafel Wastafelmeubel |
| Parkeergelegenheid | Vrijstaande stenen garage |
| Heeft airco | Ja |
| Heeft een alarm | Ja |
| Heeft kabel-tv | Ja |
| Heeft een frans balkon | Ja |
| Glasvezelaansluiting aanwezig | Ja |
| Tuin aanwezig | Ja |
| Heeft een garage | Ja |
| Beschikt over een internetverbinding | Ja |
| Heeft een dakraam | Ja |
| Heeft zonnepanelen | Ja |
| Heeft ventilatie | Ja |
| Kadastrale aanduiding | Made en Drimmelen S 5589 |
| Perceeloppervlakte | 333 m² |
| Omvang | Geheel perceel |