| Prijs | € 650.000,- k.k. |
| Type object | Woonhuis, eengezinswoning, twee onder een kap woning |
| Perceeloppervlakte | 440 m² |
| Woonoppervlakte | 215,5 m² |
| Aanvaarding | In overleg |
| Status | Verkocht onder voorbehoud |
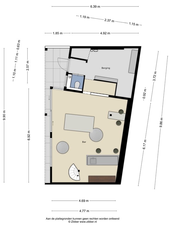
Laat je verrassen wat achter de voorgevel aangebouwd is. Super riante en mooie 2/1 kap woning met aan de achterzijde een zeer riante aanbouw, vrijstaand bijgebouw en een (verwarmd) buitenzwembad. De woning is door de huidige eigenaren volledig van begane grond tot verdieping uitgebouwd, vernieuwd, gemoderniseerd en heeft maar liefst een inhoud van 942,09m³ én een gebruiksoppervlak van 215,50m². Bijzonder aan deze woning is o.a.: een 5-tal slaapkamers, een woonkamer met een super riante open keuken met hier een prachtige keukenopstelling (nieuw geplaatst in 2025), 10 zonnepanelen, parkeren op eigen terrein (ruim voldoende voor een camper of caravan!). Het royale bijgebouw met verdieping (van ruim 35 m²!) is nu in gebruik als “café” en eerste verdieping een (6e) slaapkamer. Naast het bijgebouw is een aparte berging met toiletruimte. Indeling begane grond o.a. zij-entree met garderobe, toiletruimte, eetkamer met open keuken (totaal ca 68,9 m²), woonkamer (ca. 19,3 m²), werkkamer (ca. 24,5 m²), cv-ruimte met daarnaast de meterkast en entree aan de straatzijde. Indeling eerste verdieping o.a.: vide, lange gang naar een 5-tal slaapkamers (resp. ca. groot 14,7 m², 8,9 m², 6,1 m², 9,4 m² en 9,5 m²), badkamer (ca. 8,1 m²) en een mooie walk-in-closet bij de master-bedroom. Over de volledige breedte van het gebouw is op de eerste verdieping nog een extra slaapkamer gemaakt (slaapkamer 6). Het bijgebouw is volledig geïsoleerd en zowel op de begane grond als op de eerste verdieping hangt een airco voor het verwarmen en verkoelen van de ruimte. Tot slot: de woning staat heerlijk in het centrum met alle voorzieningen en op loopafstand van een basisschool. Ben jij nieuwsgierig geworden en wil je ervaren wat een schitterende ruimtes deze woning heeft? Maak dan snel een afspraak voor een bezichtiging! Je zult in Made niet snel een vergelijkbare woning vinden met zoveel ruimte en sfeer. Bovendien instap gereed. Bouwjaar 1940, verbouwd-gemoderniseerd en bijgebouw 2017-2025, woonoppervlak ca 215,5 m², inhoud woning 942,09 m³. (Pand nr. 05582) Van de woning is een officieel inmeetrapport aanwezig. Tevens kan je hier van alle ruimtes de afmetingen terugvinden (zie floorplanners). Ben je geïnteresseerd in de woning en wil je een bod uitbrengen? Dan kan dat direct via onze site met de knop “Eerlijk bieden”. Onze site is voorzien van een online Biedlogboek (*). Hier kunnen kandidaten ook alle info van de woning direct downloaden. Vanaf 1 januari 2023 is het verplicht dat alle makelaars gebruik maken van een gecertificeerd Biedlogboek. (*) Het biedlogboek is een digitaal overzicht waarin alle stappen in het verkoopproces terug te vinden zijn. Alle kandidaten die een bod hebben uitgebracht kunnen achteraf inzien welke biedingen er ingezonden zijn.
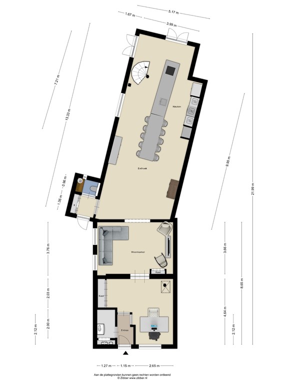
Indeling begane grond: • Entree: aan voorzijde van de woning met hierachter de ontvangsthal. In de hal zit een cv-ruimte en bevind zich ook de meterkast. Vanuit de hal heb je toegang tot de werkkamer. • Werkkamer: Door de Engelse telefooncel kom je in de voorste kamer welke nu in gebruik is als kantoor. • Woonkamer: Een sfeervol zitgedeelte is door de dubbel openslaande deuren vanuit de werkkamer toegankelijk. Vanuit hier zie je hoe royaal de aanbouw is met leefkeuken. Vloer is afgewerkt met een exclusieve visgraatmotief pvc-vloer met zwarte bies langs de muren, welke doorloopt in de keuken en zij-entree en wanden en plafonds zijn strak afgewerkt. • Keuken: Door de aanbouw is er echt een geweldige leefkeuken ontstaan. De ruimte is maar liefst 13,3 meter diep en is voorzien van een airco voor verwarmen en koelen van deze ruimte. In 2025 is een complete en moderne keuken geplaatst, voorzien van een kookeiland met inductiekookplaat met geïntegreerde afzuiging en een oven van maar liefst 90 cm breed. In de hoge kastenwand zit een wijnklimaatkast, ingebouwd koffiezetapparaat, combi-oven en vrijstaande Amerikaanse koel-vries combinatie. Aan de achterzijde zijn 2 maal dubbele tuindeuren geplaatst welke toegang geven tot de achtertuin en de overkapping. Vanuit de keuken is ook de zij-entree toegankelijk waar een toiletruimte en de garderobe is.
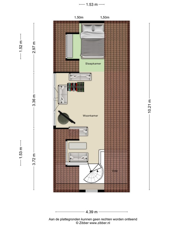
Indeling eerste verdieping: • Overloop/vide: Vanuit de trap in de keuken kom je uit op een prachtige vide met een lange gang die toegang geeft tot de 5 slaapkamers en de badkamer. In de gang de aansluiting voor het witgoed. Op de vloer dezelfde pvc-vloer als op de begane grond welke doorloopt in alle slaapkamers. • Slaapkamers: Er zijn maar liefst 5 slaapkamers gerealiseerd op de eerste verdieping waarvan de master-bedroom voorzien is van een ruime walk-in-closet. • Badkamer: Een complete badkamer met zowel een ligbad als inloopdouche, 2 wastafels en een hangcloset. De badkamer is compleet betegeld.
Voor-achtertuin, overkappingen en berging: • De voortuin: De voortuin (gelegen op het zuiden) is volledig bestraat en links van de woning een ruime oprit. Via de linkerzijde van de woning is de poort naar de zijingang en achtertuin. • Achtertuin: Gelegen op het noorden en deels voorzien van bestrating en kunstgras. Er zijn 2 heerlijke zithoeken gecreëerd met overkappingen. Helemaal links achterin de tuin het verwarmde buitenzwembad welke in 2025 aangelegd is. Tegenover het zwembad is nog een tweede berging.
Bouwtechnisch-overig: Oorspronkelijk bouwjaar van de woning is 1940, huidige eigenaren hebben de woning vanaf 2017 t/m 2025 volledig uitgebouwd, vernieuwd en gemoderniseerd. In het bijgebouw is de omvormer van de zonnepanelen zit en de pomp van het buitenzwembad. Begane grond is voorzien van vloerverwarming (wordt nu niet gebruikt, verwarmen hoofdzakelijk via airco) Woning is volledig geïsoleerd en voorzien van hardhouten kozijnen met HR++ glas. Ook het bijgebouw (café en slaapkamer) is volledig geïsoleerd en kan verwarmd (en gekoeld) worden via een 2 airco units. Bij de oprit zitten 2 aansluitingen voor het laden van een elektrische auto. Een mondelinge overeenstemming tussen de particuliere verkoper en de particuliere koper is niet rechtsgeldig. Met andere woorden: er is geen koop. Er is pas sprake van een rechtsgeldige koop als beide partijen de koopovereenkomst hebben ondertekend. Een inmeetrapport volgens de NEN-norm is verplicht bij vastgoed. Zopfi Makelaardij levert standaard bij al zijn vastgoed een inmeetrapport dat door een erkend bedrijf wordt opgesteld. U hoort als kandidaat-koper immers te weten hoe groot de inhoud van de woning is en de daadwerkelijke woonoppervlakte. Dat mag zeker geen inschatting zijn. De gegeven informatie is met zorgvuldigheid opgesteld, aan de juistheid kunnen echter geen rechten worden ontleend. De informatie is slechts als informatief bedoeld. Het deponeren van een bankgarantie door koper is een vereiste. Indien het object ca. 20 jaar oud is kan de ouderdomsclausule worden opgenomen. Eventuele clausules treft u aan in de Vragenlijst. Zopfi Makelaardij is een betrouwbare en sterkte partner. Bij ons voel jij je thuis.
| Referentienummer | 05582 |
| Vraagprijs | € 650.000,- k.k. |
| Inrichting | Niet gestoffeerd |
| Inrichting | Niet gemeubileerd |
| Status | Verkocht onder voorbehoud |
| Aanvaarding | In overleg |
| Aangeboden sinds | Vrijdag 23 januari 2026 |
| Laatste wijziging | Dinsdag 17 februari 2026 |
| Type object | Woonhuis, eengezinswoning, twee onder een kap woning |
| Soort bouw | Bestaande bouw |
| Bouwperiode | 1940 |
| Dakbedekking | Bitumen Dakpannen |
| Type dak | Zadeldak |
| Keurmerken | Bouwkundige keuring |
| Isolatievormen | Dakisolatie HR-glas Muurisolatie Spouwmuren Vloerisolatie Volledig geïsoleerd |
| Perceeloppervlakte | 440 m² |
| Woonoppervlakte | 215,5 m² |
| Inhoud | 942 m³ |
| Oppervlakte overige inpandige ruimten | 50,5 m² |
| Oppervlakte externe bergruimte | 8,3 m² |
| Oppervlakte gebouwgebonden buitenruimte | 7,6 m² |
| Aantal bouwlagen | 2 |
| Aantal kamers | 7 (waarvan 5 slaapkamers) |
| Aantal badkamers | 1 (en 1 apart toilet) |
| Ligging | Aan rustige weg Dichtbij openbaar vervoer In centrum In woonwijk Nabij school Nabij winkelcentrum |
| Type | Voortuin |
| Oriëntering | Zuid-west |
| Heeft een achterom | Ja |
| Staat | Normaal |
| Tuin 2 - Type | Achtertuin |
| Tuin 2 - Hoofdtuin | Ja |
| Tuin 2 - Oriëntering | Zuidoost |
| Tuin 2 - Staat | Normaal |
| Energielabel | A |
| CV ketel | HR combi merk Vaillant VHR |
| Warmtebron | Gas |
| Bouwjaar | 2017 |
| Combiketel | Ja |
| Eigendom | Eigendom |
| Aantal parkeerplaatsen | 2 |
| Warm water | CV-ketel |
| Verwarmingssysteem | Airconditioning Centrale verwarming Vloerverwarming |
| Ventilatie methode | Natuurlijke ventilatie |
| Keukenvoorzieningen | Inbouwapparatuur Kookeiland |
| Badkamervoorzieningen | Inloopdouche Ligbad Toilet Vloerverwarming Wastafel |
| Heeft airco | Ja |
| Heeft een alarm | Ja |
| Heeft kabel-tv | Ja |
| Heeft een rookkanaal | Ja |
| Tuin aanwezig | Ja |
| Telefoonaansluiting aanwezig | Ja |
| Beschikt over een internetverbinding | Ja |
| Heeft rolluiken | Ja |
| Heeft schuur/berging | Ja |
| Heeft een zwembad | Ja |
| Kadastrale aanduiding | Made en Drimmelen S 5811 |
| Perceeloppervlakte | 440 m² |
| Kadastrale aanduiding | |
| Eigendomsituatie | Eigen grond |